OmniShield Technologies

PROFESSIONAL CCTV SOLUTIONS

Advanced Surveillance Systems for Complete Protection

We deliver cutting-edge CCTV solutions with IP camera, analytics, and remote monitoring capabilities.


Professional Surveillance Room Design: Command Center Excellence

Creating Optimized Control Rooms for Maximum Security Effectiveness

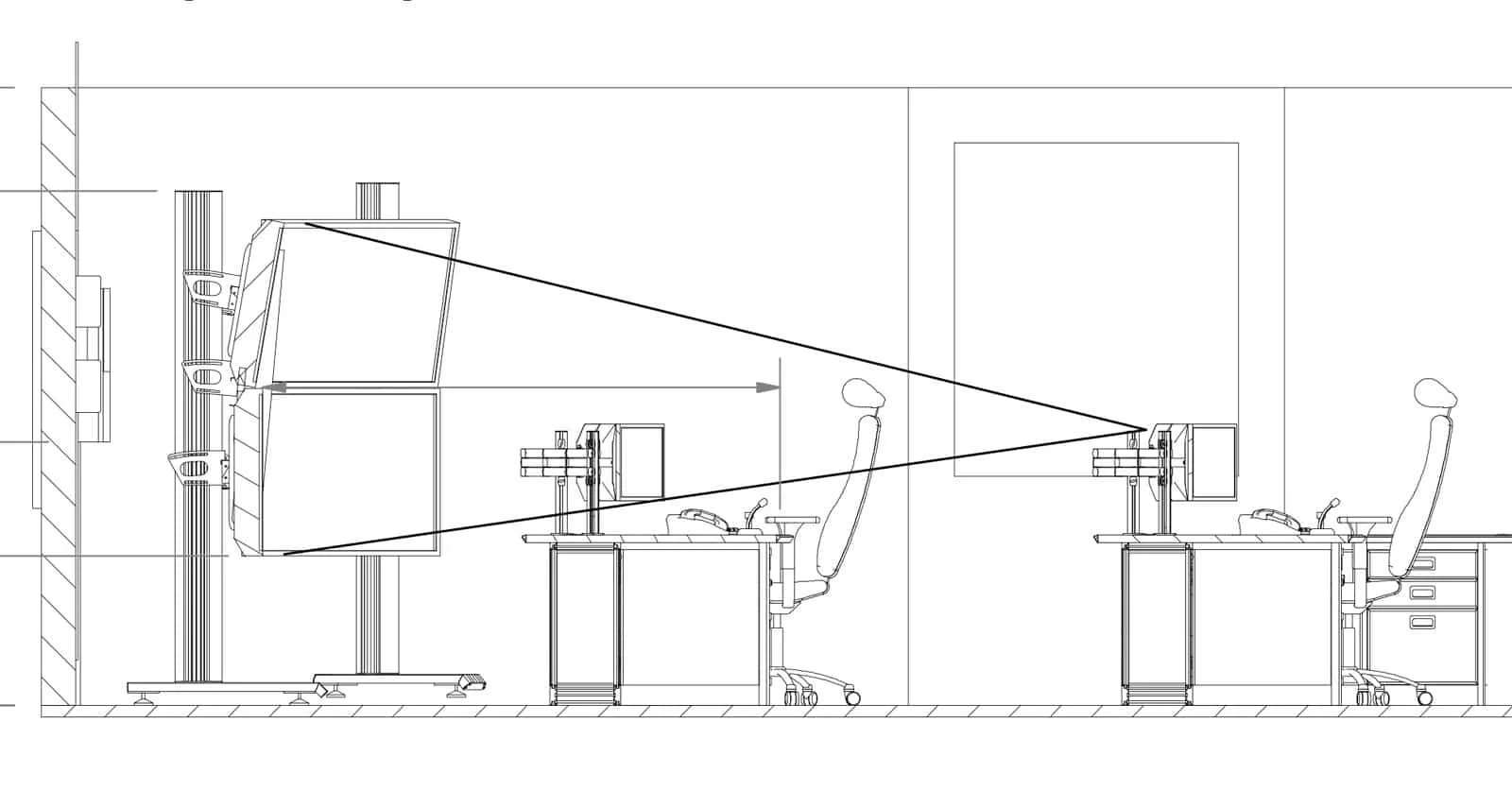
OmniShield Technologies specializes in designing and implementing state-of-the-art surveillance rooms that transform security operations from basic monitoring to comprehensive command centers. Our recent control room installations demonstrate how strategic design significantly enhances operator efficiency, reduces fatigue, and improves incident response times.

Surveillance Room Design Essentials:

  • Ergonomic Console Layout: Custom-designed workstations that minimize operator strain during extended shifts
  • Video Wall Integration: High-resolution display walls for simultaneous monitoring of multiple camera feeds
  • Optimal Lighting Control: Balanced ambient lighting to reduce screen glare and eye fatigue
  • License Plate Recognition: Sound-absorbing materials for clear communication and reduced stress
  • Cable Management: Organized infrastructure for easy maintenance and system expansion

Operational Advantages:

Properly designed surveillance rooms increase operator alertness by 35% and reduce incident response times by up to 50%. Our clients report significantly improved threat detection rates and enhanced team collaboration through strategic workstation placement and communication systems.

  • Surveillance room design
  • Security control room solutions
  • Command center design
  • Video wall installation
  • Control room console design
  • Monitoring station setup
  • Security operations center
  • CCTV control room design
  • Ergonomic surveillance workstation
  • Professional monitoring room design

Technical Implementation:

Our design process includes comprehensive workflow analysis, ensuring the physical layout supports your operational procedures. We integrate power management, network infrastructure, and environmental controls to create seamless, 24/7 operational readiness. The systems accommodate future expansion while maintaining optimal operator comfort and efficiency.

At OmniShield Technologies, we create surveillance environments that balance technical requirements with human factors. Our designs incorporate redundancy, scalability, and ergonomic principles to ensure long-term operational excellence.

Ready to transform your security monitoring capabilities? Contact OmniShield Technologies for a comprehensive surveillance room assessment and design consultation.

Let's get in touch